Котел Altep MAX 250 кВт

- В наявності
324 700 ₴
+380 (68) 799-18-62
повернення товару протягом 14 днів за рахунок покупця
Опис
Характеристики
Специфікації
Інформація для замовлення
Промислові твердопаливні котли Альтеп MAX потужністю 250 кВт, з ручним завантаженням палива в камеру згоряння.
Жаррубний сталевий теплообмінник забезпечує високий коефіцієнт корисної дії. Основною особливістю з усієї лінійки котлів Альтеп є міцний циліндричний теплообмінник, що дає змогу працювати за високих тисків теплоносія до 3 барів. Це дає змогу встановлювати для обігріву високих будівель, де необхідна підтримка високого тиску в системі опалення.
Для ефективного спалювання вугілля й дров використовується вентилятор наддува.

Основні переваги
- Високий робочий тиск теплоносія;
- Довгий термін експлуатації;
- Виготовлений зі сталі 6-8 мм
- Топкова камера великих розмірів;
- Високий ККД;
- Ефективне подавання повітря для горіння.

Комплектація
- Котел в обшивці;
- Блок автоматики керування;
- Вентилятори;
- Шкірковий інструмент;
- Документация.
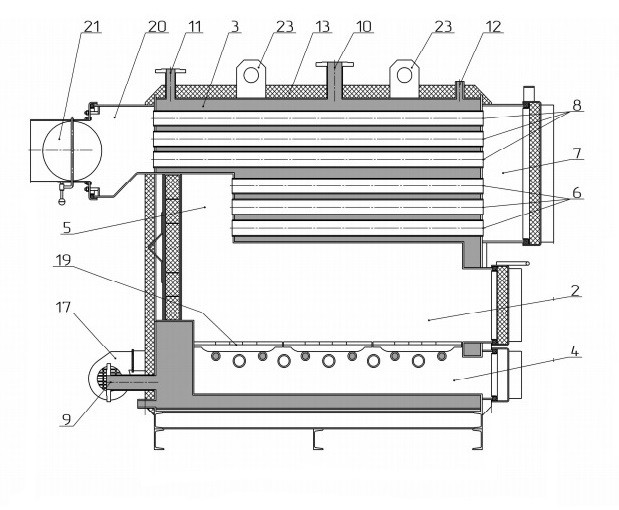
Конструкція



| 1 – Корпус котла; | 13 — Теплоізоляція корпусу; |
| 2 – Топка; | 14 — Штуцер зливання води з котла; |
| 3 – Водяна сорочка; | 15 — Штуцер видалення конденсату; |
| 4 – Зоряна камера; | 16 — Двері в зонну камеру; |
| 5 — Перша поворотна камера газів; | 17 — Вентилятор наддуву повітря; |
| 6 — Перший ряд жарових труб теплообмінника; | 18 – завантажувальні дверцята; |
| 7 – Зона очищення котла; | 19 — Колосникова решітка; |
| 8 — Другий ряд жарових труб теплообмінника; | 20 — Димозбірник; |
| 9 — Патрубок зворотної мережевої води; | 21 — Шибер регулювання тяги топкових газів; |
| 10 — Патрубок подавання мережевої води; | 22 – Люк для чищення димозбірника; |
| 11 — Патрубок під запобіжний клапан; | 23 – Транспортувальні кільця; |
| 12 — Штуцер під групу безпеки; | 24 — Блок автоматики керування. |
Блок автоматики керування

Габаритні розміри



Технічні характеристики

| Основні | |
|---|---|
| Виробник | Altep |
| Країна виробник | Україна |
| Вид пального | Тверде |
| Види твердого палива | Антрацит, Брикети, Буре вугілля, Дрова, Кам'яне вугілля |
| Коефіцієнт корисної дії | 86 % |
| Призначення котла | Одноконтурний |
| Спосіб установки | Підлоговий |
| Тип топки | Відкрита |
| Об'єм камери згоряння | 500 л |
| Матеріал теплообмінника | Сталь |
| Спосіб відведення відпрацьованих газів | Димар |
| Мінімальна температура димових газів | 100 град. |
| Максимальна температура димових газів | 180 град. |
| Вага | 2200 кг |
| Гарантійний термін | 60 міс |
| Теплоносій | Вода |
| Колір | Червоний |
| Тип котла | Тривалого горіння |
| Автоматична подача палива | Ні |
| Стан | Новий |
| Опалення | |
| Мінімальний робочий тиск системи опалення | 1 бар |
| Максимальний робочий тиск системи опалення | 3 бар |
| Мінімальна температура в режимі опалення | 58 град. |
| Максимальна температура в режимі опалення | 85 град. |
| Електричні параметри | |
| Напруга мережі | 220~240 В |
| Частота | 50 Гц |
| Споживана потужність | 6 Вт |
| Габаритні і приєднувальні розміри | |
| Діаметр димоходу | 350 мм |
| Вхід в систему опалення | 3" |
| Повернення з системи опалення | 3" |
| Користувальницькі характеристики | |
| Потужність номінальна | 250 |
| Об'єм води в котлі | 1160 |
| Площа обігріву | 2500 |
| Тип котла по потужності | Промисловий до 1500 кВт |
- Ціна: 324 700 ₴






